Portfolio

Forest Brook


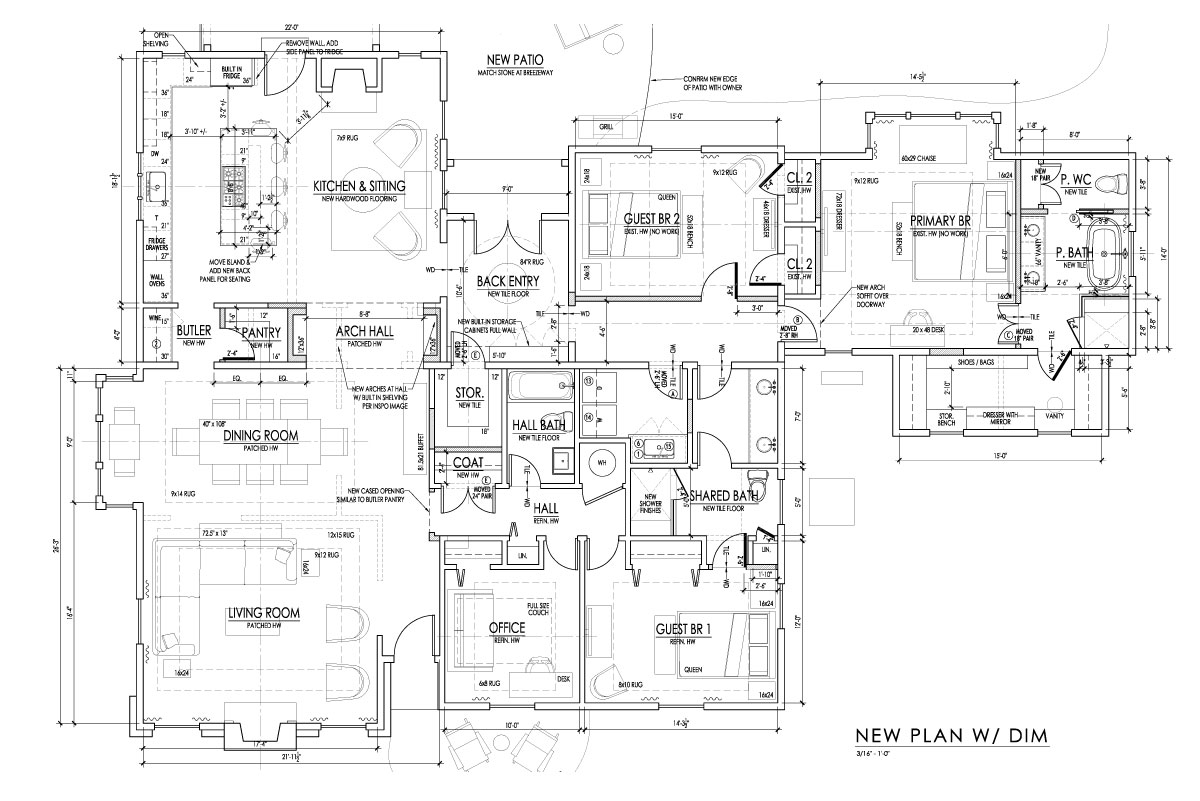
Interior home renovations and remodeling is a service F.E. Trainer has excelled at for over twenty years. This particular remodeling job is an excellent example of what our in-house design-build team can accomplish when a homeowner already knows what they want and needs someone to execute their plan. The project began with a thorough analysis and walkthrough with the homeowner to explore all possibilities. In the end, an entirely new floorplan was conceived to accommodate a more modern way of living. Walls were moved, new rooms were added, and plumbing and HVAC was re-routed for a totally up-to-date floorplan. F.E. Trainer's design-build team helped with the selection of solid brass hardware, lighting and accessories throughout the home for a luxurious look and feel. The home's hardwoods were refinished and expanded, paying careful attention to the original wood species and board size for a seamless look. Arched portals, marble flooring, and a butler's pantry are just a few of the details that worked together to completely transform this property from a 1960s ranch into a luxurious, single-level oasis.

*Be sure to check out the last few images in the gallery for the before photos

  • Knoxville, TN

  • Design-Build

  • Kitchen, Living Room, Master Suite